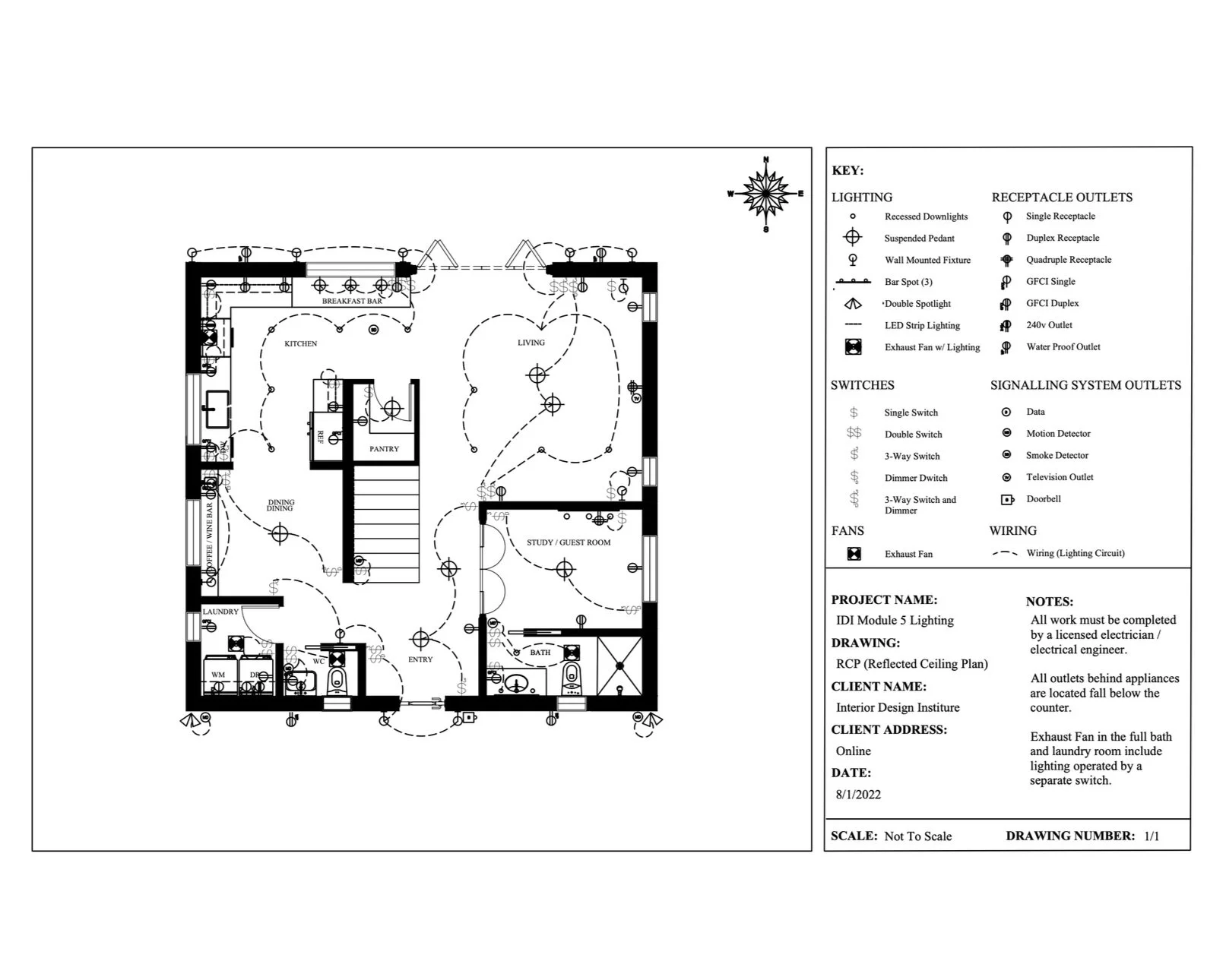
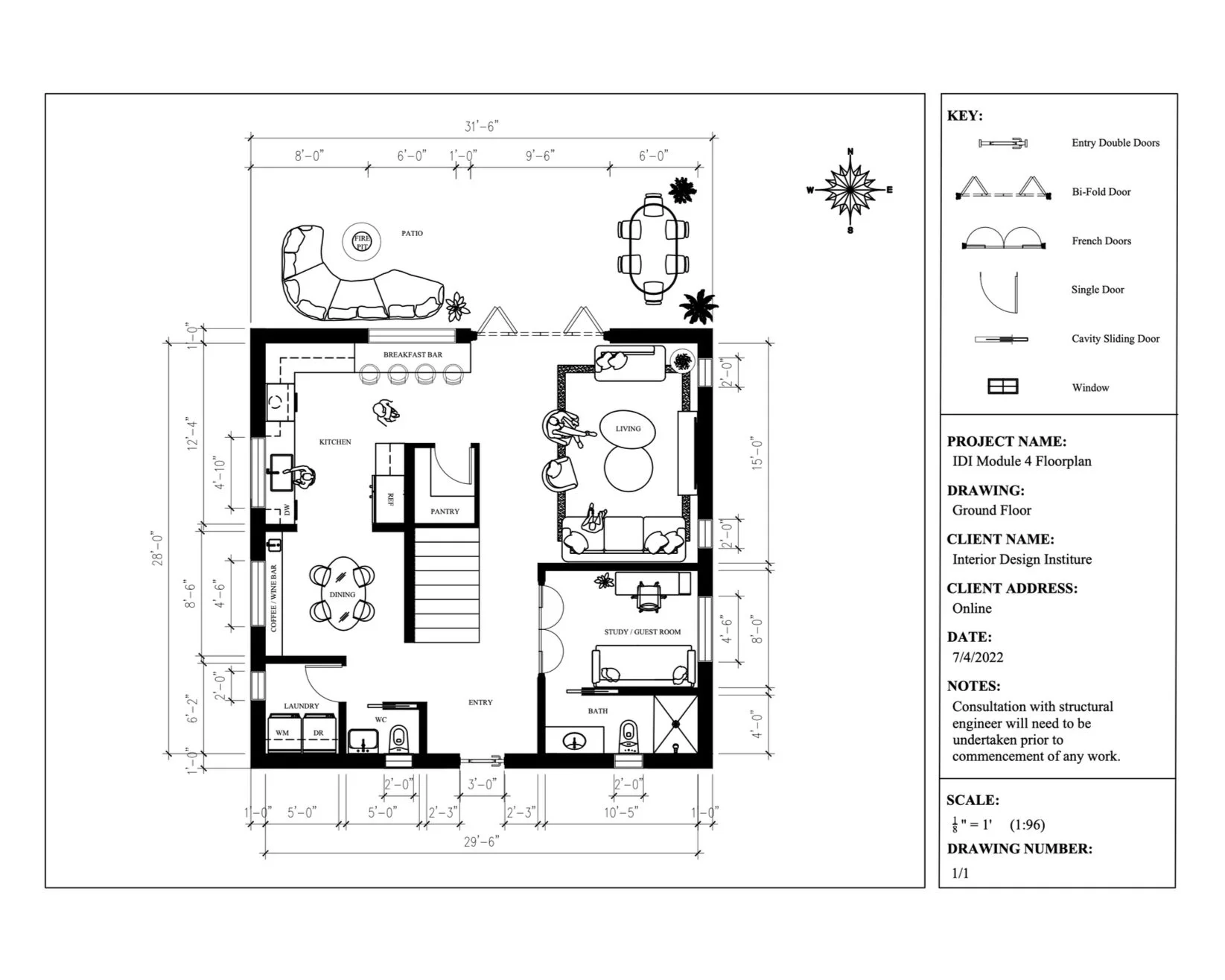
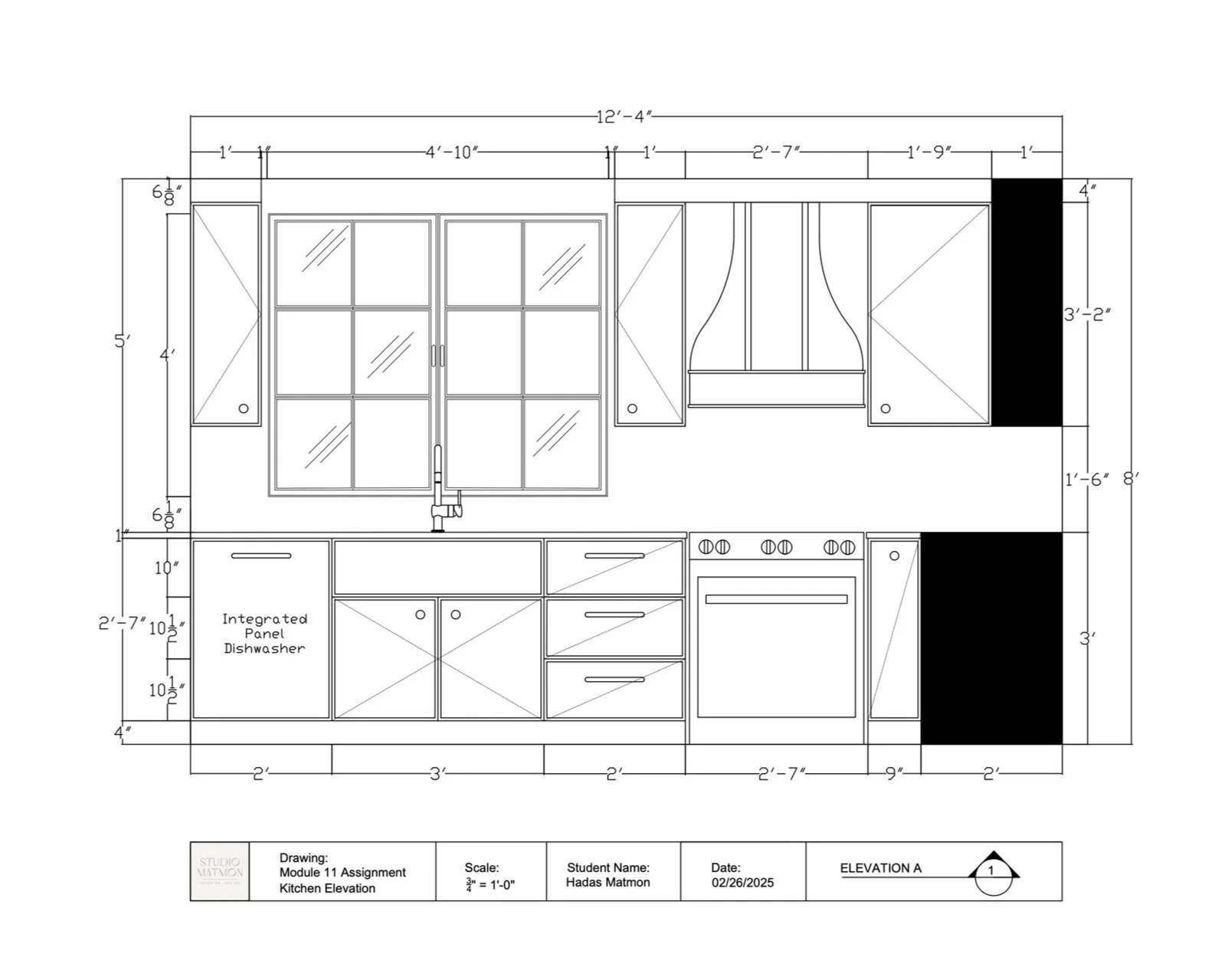
IDI Concept Project Floor Plan Kitchen Elevation Electrical Plan Kitchen Materials Living Room Kitchen Dining Room Powder Room